51一品茶楼,全国茶楼信息网论坛免费网站,淡水一品香论坛qm网,湖南一品楼qm论坛

全国服务热线021-64162222

蝶阀知识阀门首页 > 阀门知识 > 蝶阀知识 >

电动调节蝶阀厂家、规格型号

[ 2019-06-14 ]
电动调节蝶阀厂家、规格型号

上海湖泉阀门有限公司生产的电动调节蝶阀采用一体化结构,有开关型和调节型两种??匦陀玫ハ嘟涣鞯缭粗苯涌刂品趴?。调节型有内装阀门定位器、伺服放大器和外接伺服操作器等形式,采用输入控制信号(4-20mA DC)即可控制阀门运转。具有功能强,体积小,性能可靠等优点。配套简单,流通能力大,特别适合于介质是粘稠,含颗粒,纤维性质的场合。它可广泛应用于食品、环保、轻工、石油、化工、教学设备、造纸、电力等行业的工业过程自动控制系统中。

电动调节蝶阀主要技术参数

公称通径
(DN)

50

65

80

100

125

150

200

250

300

350

400

450

500

流量系数 (CV)

95

175

270

375

740

1400

2100

3250

4680

6200

8100

11000

15800

转角(α°)

90°

工作电压

220VAC、380VAC

工作温度范围℃

-40~250

输入信号

4~20mADC、220VAC、24VDC

公称压力(MPa)

1.6、4.0、6.4

连接形式及标准

对夹式、法兰式

阀体材料

ZG25、304、316、316L

阀芯材料

304、316、316L

阀座材料

304、316、F4

流量特性

近似等百分比

泄漏等级

V、VI


电动调节蝶阀执行机构
3610R系列电动执行器,是以AC220单相交流电源作为驱动电源,接受来自DCS、PLC系统或调节仪表操作器的DC4~20mA、DC0~10mA或DC1~5V控制信号的全电子式执行机构,该执行机构具备动作切换功能以及开度信号功能和手动等功能。大口径蝶阀一般采用380VAC电动执行器,国内品牌如上海澳托克,扬州电力,天津二通等;国外品牌有英国罗托克、法国伯纳德、德国西博思(西门子)等。
 

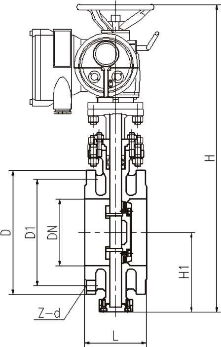
电动调节蝶阀形尺寸及重量

电动调节蝶阀

单位:mm

公称通径

结构长度L

外形尺寸

连接尺寸PN1.6MPa

参考重量

DN

法兰式

对夹式

H

H

D

D1

Z-d

(kg)

50

108

43

112

530

165

125

4-18

19

65

112

46

115

530

185

145

4-18

22

80

114

49

120

565

200

160

8-18

25

100

127

56

138

600

220

180

8-18

28

125

140

64

164

640

250

210

8-18

43

150

140

70

185

705

285

240

8-22

50

200

152

71

200

775

340

295

12-22

64

250

165

76

243

945

405

355

12-26

99

300

178

83

250

1070

160

410

12-26

130

350

190

92

280

1140

520

470

16-26

188

400

216

102

305

1210

580

525

16-30

270

450

222

114

350

1335

640

585

20-30

350

500

229

127

380

1415

715

650

20-33

375

600

267

154

445

1605

840

770

20-36

560

700

292

165

480

1844

910

840

24-36

610

800

318

190

530

2040

1025

950

24-39

880



电动调节蝶阀质量及服务承诺:
  一、售前服务:如果买方没有指定产品型号,我公司客服或销售人员会根据买方人员提供的技术参数进行指导选型,或与买方技术人员进行技术交流,以确保产品准确选型。
  二、质保期为货物验收合格之日起壹年(极少数产品以动作次数为使用寿命),质保期内因产品质量问题导致的故障供方免费提供配件及咨询服务。在收到用户质量问题反馈信息后,我公司将在4小时内给出具体的解决方案。如果还不能解决问题,我公司将派出工程师在48小时(不可抗力因素除外)内到达现场解决问题。
  三、我公司产品在质保期结束后,依然提供技术服务和易损件成本供应。
  四、如果此质量及服务承诺与《消费者权益?;しā废嗟执ィ础断颜呷ㄒ姹;しā分葱小?br />
本文标题:电动调节蝶阀厂家、规格型号 本文地址:http://m.5735p.cn/tech-diefa/2286.html

上一篇:电动蝶阀的优缺点及安装维护要点有哪些 / 下一篇:电动蝶阀到底应该怎么判断好坏